Double Tree

Sobre o projeto

O grande destino do turismo de Minas Gerais na Serra da Canastra

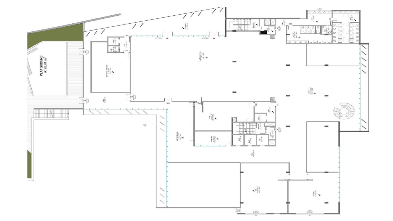
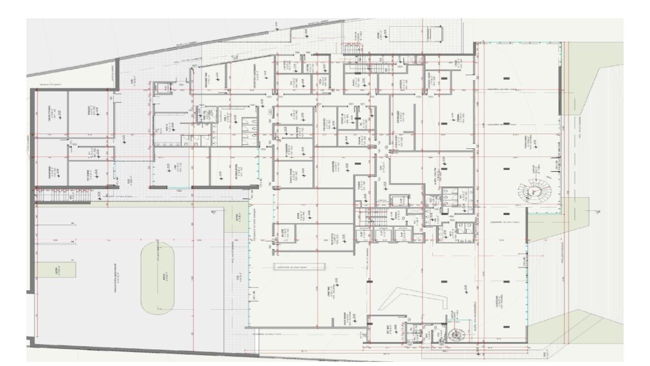
O DoubleTree by Hilton Serra da Canastra será construído em São João Batista do Glória/MG, com acesso exclusivo ao Lago de Furnas e próximo à Serra da Canastra e aos cânions de Capitólio. Um hotel de alto padrão que une natureza, conforto e hospitalidade internacional em uma das regiões mais deslumbrantes do Brasil.

Diferenciais do empreendimento

Localização estratégica com acesso ao Lago de Furnas

Marca internacional Hilton com padrão global

Alto potencial turístico e valorização regional

Operação hoteleira com expertise internacional

Transforme sua forma de morar. Deixe seus dados e nossa equipe apresentará a você cada detalhe inovador deste empreendimento feito para quem não abre mão de qualidade e sofisticação.

Preencha os campos abaixo e nós entraremos em contato

Abra as portas para grandes oportunidades com a UTG!

Seja um investidor em busca de negócios promissores, em nos vender, fazer uma parceria com seu terreno ou empreendimento, a UTG está pronta para atender às suas necessidades.

RECEBEMOS O SEU CADASTRO!

Em breve, um consultor de vendas entrará em contato com você
e lhe enviará informações sobre o novo empreendimento da UTG,
o Residencial das Flores!

Caso queria otimizar seu contato, clique no botão “Chamar no WhatsApp”